Met een eigen account kun je panden volgen, opslaan als favoriet, je zoekprofiel opslaan en jouw eigen notities bij een huis maken.
Verkocht onder voorbehoud
Verkocht onder voorbehoud: Roessinkweg 4, 7255 PC Hengelo (Gld)
€ 675.000,- k.k.
Beschrijving
Nabij landgoed ’t Zand, de Markeplas en het natuurgebied ’t Klooster gelegen UITGEBOUWD VRIJSTAAND WOONHUIS met grote dubbele garage op een perceel van ruim 1 hectare (11.090 m²).Vanuit de woning vrij uitzicht en direct vanaf eigen erf wandel-, fiets-, uitrijmogelijkheden te paard en toegang tot MTB routes.
Indeling
Kelder: provisiekelder.Begane grond: entree, hal, meterkast/toegang tot kelder.
Woonkamer-en-suite met voorkamer voorzien van schouw en van hieruit prachtig vrij uitzicht. Ruime woon-/eetkamer met vaste kast, rookkanaal met houtkachel en tuindeur naar terras.
Woonkeuken met aanrechtblok voorzien van inbouwapparatuur. Achter-entree met ruime vaste kast. Bijkeuken met CV-opstelling (Remeha, 2020), wasmachine- en drogeraansluitingen en uitstortgootsteen. Ruime badkamer met inloopdouche, wastafel, toilet en urinoir.
1e Verdieping: overloop met vaste kast, slaapkamer aan voorzijde met vaste kast. Ruime en lichte slaap-/werkkamer met vaste kast en groot dakraam. Hoofdslaapkamer aan achterzijde met aangrenzend ruim toilet met hangend closet en wastafel. Overloop met bergruimte.
2e Verdieping: vlizotrap naar bergzolder.
Bijzonderheden
Kenmerken:Bouwjaar 1960, in 2008 uitgebouwd
Inhoud ca. 556 m³
Woonoppervlakte ca. 141 m²
Externe bergruimte (garage met zolder) ca. 105 m²
Totale perceeloppervlakte 11.090 m²
Woning deels geïsoleerd en voorzien van energielabel D
Woonkamer, woonkeuken en badkamer voorzien van vloerverwarming.
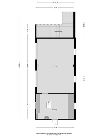
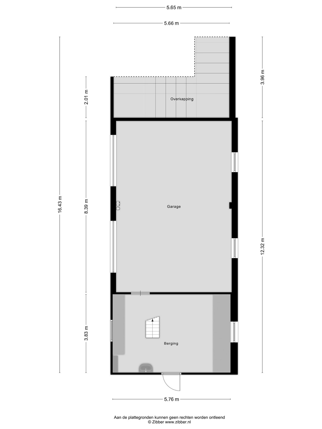
Ruime dubbele garage met werkplaats gebouwd in 2005.
Vaste trap naar ruime zolderberging.
Garage voorzien van 2 elektrisch bedienbare garagedeuren, rookkanaal met houtkachel, onderverdeling meterkast, puls tbv besproeien tuin met eigen grondwater.
Het ruime perceel is ideaal voor het houden van kleinvee, paarden en/of het realiseren van een eigen moestuin met voedselbos.
De ligging is vrij maar niet te afgelegen, het centrum van Hengelo Gld met ruime voorzieningen is op ca. 3 kilometer bereikbaar en stad Doetinchem op ca. 10 kilometer.
Aanvaarding in overleg.
Kenmerken
| Overdracht | |
|---|---|
| Referentienummer | 00252 |
| Vraagprijs | € 675.000,- k.k. |
| Status | Verkocht onder voorbehoud |
| Aanvaarding | In overleg |
| Aangeboden sinds | Vrijdag 24 oktober 2025 |
| Laatste wijziging | Woensdag 10 december 2025 |
| Bouw | |
|---|---|
| Type object | Woonhuis, eengezinswoning, vrijstaande woning |
| Soort bouw | Bestaande bouw |
| Bouwperiode | 1960 |
| Dakbedekking | Dakpannen |
| Type dak | Zadeldak |
| Isolatievormen | Dubbel glas Spouwmuren |
| Oppervlaktes en inhoud | |
|---|---|
| Perceeloppervlakte | 11.090 m² |
| Woonoppervlakte | 141 m² |
| Inhoud | 556 m³ |
| Oppervlakte overige inpandige ruimten | 9 m² |
| Oppervlakte externe bergruimte | 105 m² |
| Oppervlakte gebouwgebonden buitenruimte | 0,7 m² |
| Indeling | |
|---|---|
| Aantal bouwlagen | 2 |
| Aantal kamers | 5 (waarvan 3 slaapkamers) |
| Aantal badkamers | 1 (en 1 apart toilet) |
| Locatie | |
|---|---|
| Ligging | Aan bosrand Aan rustige weg Buiten bebouwde kom In bosrijke omgeving |
| Tuin | |
|---|---|
| Type | Tuin rondom |
| Hoofdtuin | Ja |
| Oriëntering | Zuidoost |
| Staat | Normaal |
| Energieverbruik | |
|---|---|
| Energielabel | D |
| CV ketel | |
|---|---|
| CV ketel | Remeha |
| Warmtebron | Gas |
| Bouwjaar | 2020 |
| Combiketel | Ja |
| Eigendom | Eigendom |
| Uitrusting | |
|---|---|
| Warm water | CV-ketel |
| Verwarmingssysteem | Centrale verwarming Vloerverwarming (gedeeltelijk) |
| Ventilatie methode | Mechanische ventilatie Natuurlijke ventilatie |
| Badkamervoorzieningen | Inloopdouche Toilet Urinoir Vloerverwarming Wastafel |
| Parkeergelegenheid | Vrijstaande stenen garage |
| Heeft een rookkanaal | Ja |
| Heeft een frans balkon | Ja |
| Glasvezelaansluiting aanwezig | Ja |
| Tuin aanwezig | Ja |
| Heeft een garage | Ja |
| Beschikt over een internetverbinding | Ja |
| Heeft een dakraam | Ja |
| Heeft ventilatie | Ja |
| Kadastrale gegevens | |
|---|---|
| Kadastrale aanduiding | Hengelo Gld P 336 |
| Perceeloppervlakte | 11.090 m² |
| Omvang | Geheel perceel |
| Eigendomsituatie | Eigen grond |