Beschrijving
Nabij landgoed ’t Zand, de Markeplas en het natuurgebied ’t Klooster gelegen UITGEBOUWD VRIJSTAAND WOONHUIS met grote dubbele garage op een perceel van ruim 1 hectare (11.090 m²).
Vanuit de woning vrij uitzicht en direct vanaf eigen erf wandel-, fiets-, uitrijmogelijkheden te paard en toegang tot MTB routes.
Indeling
Kelder: provisiekelder.
Begane grond: entree, hal, meterkast/toegang tot kelder.
Woonkamer-en-suite met voorkamer voorzien van schouw en van hieruit prachtig vrij uitzicht. Ruime woon-/eetkamer met vaste kast, rookkanaal met houtkachel en tuindeur naar terras.
Woonkeuken met aanrechtblok voorzien van inbouwapparatuur. Achter-entree met ruime vaste kast. Bijkeuken met CV-opstelling (Remeha, 2020), wasmachine- en drogeraansluitingen en uitstortgootsteen. Ruime badkamer met inloopdouche, wastafel, toilet en urinoir.
1e Verdieping: overloop met vaste kast, slaapkamer aan voorzijde met vaste kast. Ruime en lichte slaap-/werkkamer met vaste kast en groot dakraam. Hoofdslaapkamer aan achterzijde met aangrenzend ruim toilet met hangend closet en wastafel. Overloop met bergruimte.
2e Verdieping: vlizotrap naar bergzolder.
Bijzonderheden
Kenmerken:
Bouwjaar 1960, in 2008 uitgebouwd
Inhoud ca. 556 m³
Woonoppervlakte ca. 141 m²
Externe bergruimte (garage met zolder) ca. 105 m²
Totale perceeloppervlakte 11.090 m²
Woning deels geïsoleerd en voorzien van energielabel D
Woonkamer, woonkeuken en badkamer voorzien van vloerverwarming.
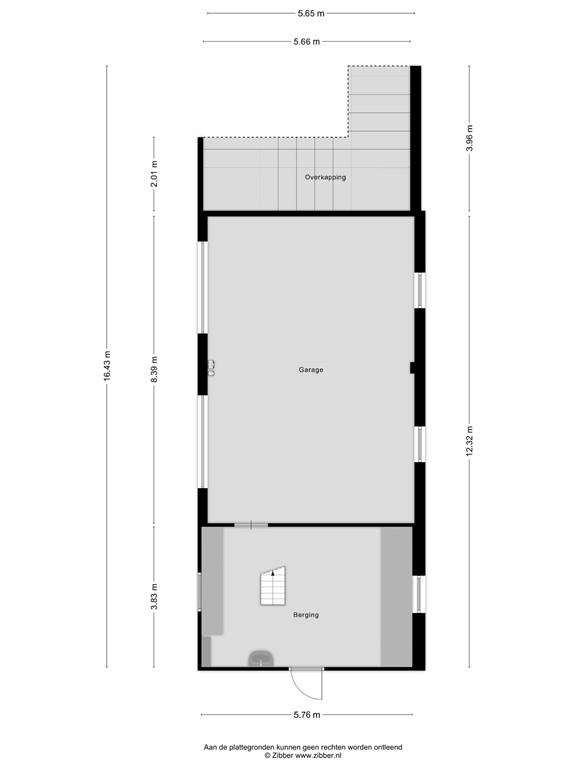
Ruime dubbele garage met werkplaats gebouwd in 2005.
Vaste trap naar ruime zolderberging.
Garage voorzien van 2 elektrisch bedienbare garagedeuren, rookkanaal met houtkachel, onderverdeling meterkast, puls tbv besproeien tuin met eigen grondwater.
Het ruime perceel is ideaal voor het houden van kleinvee, paarden en/of het realiseren van een eigen moestuin met voedselbos.
De ligging is vrij maar niet te afgelegen, het centrum van Hengelo Gld met ruime voorzieningen is op ca. 3 kilometer bereikbaar en stad Doetinchem op ca. 10 kilometer.
Aanvaarding in overleg.
Plattegronden
177869479_1583523_roess_begane_grond_first_design_20251009_c4fd52.jpg
177869479_1583523_roess_eerste_verdiepi_first_design_20251009_2c806a.jpg
177869479_1583523_roess_kelder_first_design_20251009_e5d60e.jpg
177869479_1583523_roess_zolder_first_design_20251009_7905bb.jpg
177869479_1583523_roess_garage_first_design_20251009_1e4bd0.jpg
177869479_1583523_roess_garage_zolder_first_design_20251009_b85528.jpg