Met een eigen account kun je panden volgen, opslaan als favoriet, je zoekprofiel opslaan en jouw eigen notities bij een huis maken.
Verkocht onder voorbehoud
Beschrijving
In rustige woonwijk nabij speelveldjes en groenvoorzieningen gelegen TUSSENWONING met aangebouwde berging, achtertuin en achterom. Deze comfortabele woning is aan de achterzijde uitgebouwd en in 2018 gemoderniseerd.Ideale ligging nabij de rand van het dorp, treinstation, winkels en scholen.
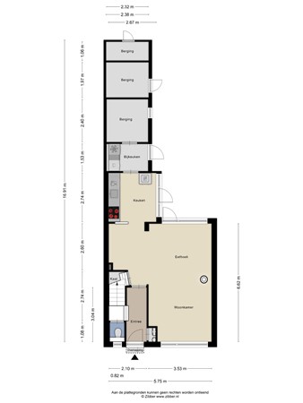
Indeling
Begane grond: entree, hal, meterkast, toiletruimte met hangend closet. L-woonkamer met rookanaal en tuindeur naar achtertuin/terras. Keuken in lichte kleurstelling en met inbouwapparatuur waaronder inductiekookplaat, afzuigkap, vaatwasser, koelkast en combi-magnetron.Bijkeuken met achter-entree. Binnendoorgang naar aangebouwde berging. Via buitenom bereikbare berging/fietsenschuur en houtopslag.
1e Verdieping: overloop, 3 slaapkamers, badkamer met douche en wastafel. Separate toiletruimte met hangend closet en fonteintje.
2e Verdieping: middels vlizotrap bereikbare bergzolder.
Bijzonderheden
Bouwjaar 1964Inhoud ca. 327 m³
Woonoppervlakte ca. 86 m²
Totale perceeloppervlakte 170 m²
Verbouwd / gemoderniseerd in 2018
CV-installatie met Remeha ketel bouwjaar 2018.
Woning is grotendeels geïsoleerd en voorzien van HR++ beglazing
In 2018 dakisolatie aangebracht
Spouwmuren in 2023 na-geisoleerd met EPS spouwparels
10 zonnepanelen (2021)
Airconditioning geplaatst in 2024, (koelen en verwarmen)
Energielabel B
Kenmerken
| Overdracht | |
|---|---|
| Referentienummer | 00259 |
| Vraagprijs | € 349.000,- k.k. |
| Status | Verkocht onder voorbehoud |
| Aanvaarding | In overleg |
| Aangeboden sinds | Dinsdag 6 januari 2026 |
| Laatste wijziging | Woensdag 4 februari 2026 |
| Bouw | |
|---|---|
| Type object | Woonhuis, eengezinswoning, tussenwoning |
| Soort bouw | Bestaande bouw |
| Bouwperiode | 1964 |
| Dakbedekking | Dakpannen |
| Type dak | Zadeldak |
| Isolatievormen | Dakisolatie Gedeeltelijk dubbel glas Muurisolatie Spouwmuren |
| Oppervlaktes en inhoud | |
|---|---|
| Perceeloppervlakte | 170 m² |
| Woonoppervlakte | 86 m² |
| Inhoud | 327 m³ |
| Oppervlakte overige inpandige ruimten | 5 m² |
| Oppervlakte externe bergruimte | 7 m² |
| Indeling | |
|---|---|
| Aantal bouwlagen | 3 |
| Aantal kamers | 4 (waarvan 3 slaapkamers) |
| Aantal badkamers | 1 (en 2 aparte toiletten) |
| Tuin | |
|---|---|
| Type | Achtertuin |
| Hoofdtuin | Ja |
| Oriëntering | Noord-oost |
| Heeft een achterom | Ja |
| Staat | Normaal |
| Tuin 2 - Type | Voortuin |
| Tuin 2 - Oriëntering | Zuid-west |
| Tuin 2 - Staat | Normaal |
| Energieverbruik | |
|---|---|
| Energielabel | B |
| CV ketel | |
|---|---|
| CV ketel | Remeha |
| Warmtebron | Gas |
| Bouwjaar | 2018 |
| Combiketel | Ja |
| Eigendom | Eigendom |
| Uitrusting | |
|---|---|
| Warm water | CV-ketel |
| Verwarmingssysteem | Centrale verwarming |
| Ventilatie methode | Mechanische ventilatie Natuurlijke ventilatie |
| Keukenvoorzieningen | Inbouwapparatuur |
| Badkamervoorzieningen | Douche Wastafel |
| Heeft airco | Ja |
| Heeft een rookkanaal | Ja |
| Tuin aanwezig | Ja |
| Beschikt over een internetverbinding | Ja |
| Heeft schuur/berging | Ja |
| Heeft ventilatie | Ja |
| Kadastrale gegevens | |
|---|---|
| Kadastrale aanduiding | Vorden M 357 |
| Perceeloppervlakte | 170 m² |
| Omvang | Geheel perceel |
| Eigendomsituatie | Eigen grond |