Met een eigen account kun je panden volgen, opslaan als favoriet, je zoekprofiel opslaan en jouw eigen notities bij een huis maken.
Verkocht onder voorbehoud
Verkocht onder voorbehoud: Kervelseweg 6, 7255 BG Hengelo (Gld)
€ 519.000,- k.k.
Beschrijving
OP EEN RIANT PERCEEL VAN 1.154 M² IN HET CENTRUM VAN HENGELO GLD GELEGEN SFEERVOLLE VRIJSTAANDE WOONBOERDERIJ met authentieke uitstraling en kenmerken. Ideale ligging op loopafstand van alle voorzieningen met een heerlijke diepe tuin met een moestuin, boomgaard en (speel) grasveld.Indeling
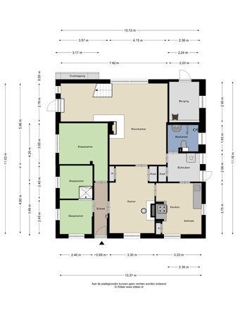
Kelder: ProvisiekelderBegane grond: Entree, hal, werkkamer. Opkamer met toegang tot provisiekelder. Slaapkamer. Sfeervolle eetkamer en keuken met schouw. Ruime woonkamer met open haard en groot raampartij met uitzicht op diepe achtertuin. Zij-entree/hal. Badkamer met douche, toilet en wastafel. Via buitenom bereikbare berging.
1e Verdieping: bordestrap naar slaapkamer en grote zolderruimte. Bergruimte/ zolderruimte.
Bijzonderheden
Kenmerken:Bouwjaar 1910
Inhoud ca. 658 m³
Woonoppervlakte ca. 148 m², overige inpandige ruimte ca. 29 m², totale oppervlakte ca. 177 m²
Totale perceeloppervlakte 1.154 m²
Deze woonboerderij bezit nog veel authentieke kenmerken waaronder een schouw, provisiekasten in de keuken, paneeldeuren, fraaie tegelvloer etc.
Verwarming middels gaskachels, gedeeltelijk isolerende beglazing. Energielabel G.
De kwalificatie “kluswoning” is van toepassing waarbij deze fraaie woonboerderij veel potentie en mogelijkheden heeft en naar eigen inzichten gemoderniseerd en verduurzaamd kan worden.
Aanvaarding in overleg.
Kenmerken
| Overdracht | |
|---|---|
| Referentienummer | 00256 |
| Vraagprijs | € 519.000,- k.k. |
| Status | Verkocht onder voorbehoud |
| Aanvaarding | In overleg |
| Aangeboden sinds | Donderdag 18 december 2025 |
| Laatste wijziging | Woensdag 4 februari 2026 |
| Bouw | |
|---|---|
| Type object | Woonhuis, woonboerderij, vrijstaande woning |
| Soort bouw | Bestaande bouw |
| Bouwperiode | 1910 |
| Dakbedekking | Dakpannen |
| Type dak | Zadeldak |
| Isolatievormen | Gedeeltelijk dubbel glas |
| Oppervlaktes en inhoud | |
|---|---|
| Perceeloppervlakte | 1.154 m² |
| Woonoppervlakte | 148 m² |
| Inhoud | 658 m³ |
| Oppervlakte overige inpandige ruimten | 29 m² |
| Indeling | |
|---|---|
| Aantal bouwlagen | 2 |
| Aantal kamers | 7 (waarvan 5 slaapkamers) |
| Aantal badkamers | 1 |
| Locatie | |
|---|---|
| Ligging | Dichtbij openbaar vervoer In centrum Nabij school |
| Tuin | |
|---|---|
| Type | Voortuin |
| Oriëntering | Zuiden |
| Staat | Normaal |
| Tuin 2 - Type | Achtertuin |
| Tuin 2 - Hoofdtuin | Ja |
| Tuin 2 - Oriëntering | Noord west |
| Tuin 2 - Staat | Normaal |
| Energieverbruik | |
|---|---|
| Energielabel | G |
| Uitrusting | |
|---|---|
| Warm water | Elektrische boiler |
| Verwarmingssysteem | Gaskachels Open haard |
| Badkamervoorzieningen | Douche Toilet Wastafel |
| Heeft een open haard | Ja |
| Heeft een rookkanaal | Ja |
| Tuin aanwezig | Ja |
| Heeft schuur/berging | Ja |
| Kadastrale gegevens | |
|---|---|
| Kadastrale aanduiding | Hengelo Gld K 4745 |
| Perceeloppervlakte | 229 m² |
| Omvang | Geheel perceel |
| Eigendomsituatie | Eigen grond |
| Kadastrale aanduiding | Hengelo Gld K 1769 |
| Perceeloppervlakte | 925 m² |
| Omvang | Geheel perceel |
| Eigendomsituatie | Eigen grond |