Met een eigen account kun je panden volgen, opslaan als favoriet, je zoekprofiel opslaan en jouw eigen notities bij een huis maken.
Verkocht onder voorbehoud
Verkocht onder voorbehoud: Hummeloseweg 30, 7255 AH Hengelo (Gld)
€ 695.000,- k.k.
Beschrijving
Op markante locatie aan de rand van het dorp gelegen VRIJSTAANDE KARAKTERISTIEKE WOONBOERDERIJ met royaal BIJGEBOUW (ca. 125 m²) waarin ruime, brede carport (30 m²), grote open kapschuur (78 m²), gesloten dubbele garage/werkplaats (42 m²) met toiletruimte en bovenverdieping (120 m²) in gebruik als fitnessruimte, bar en magazijn/opslag. De woonboerderij is goed onderhouden, sfeervol afgewerkt en ingericht. Ideaal als gezinswoning met de combinatie van werken / praktijk aan huis of gewoon heel veel ruimte voor diverse hobby’s.Indeling
Indeling woonhuis:Begane grond: entree, hal, meterkast, toiletruimte met hangend closet en fonteintje. Ruime lichte werkkamer/kantoor met gaskachel. Woonkamer met rookkanaal en houtkachel. Open keuken in landelijke stijl met inbouwapparatuur waaronder oven met 6 pits gas kookplaat, koel-vries combinatie, vaatwasser en afzuigkap. Berging/Bijkeuken. Vanuit de keuken is er direct toegang tot de aangebouwde veranda. De veranda geeft naast een prettige overdekte entree tevens een heerlijk droog terras.
1e Verdieping: overloop met vaste kast waarin de CV-opstelling is gesitueerd. Vaste kastenwand met bergruimte en aansluitmogelijkheid voor wassen en drogen. Lichte ouder-slaapkamer met 5 dakramen. Badkamer met ligbad, inloopdouche, wastafel, toilet en vloerverwarming. 2 (kinder)slaapkamers.
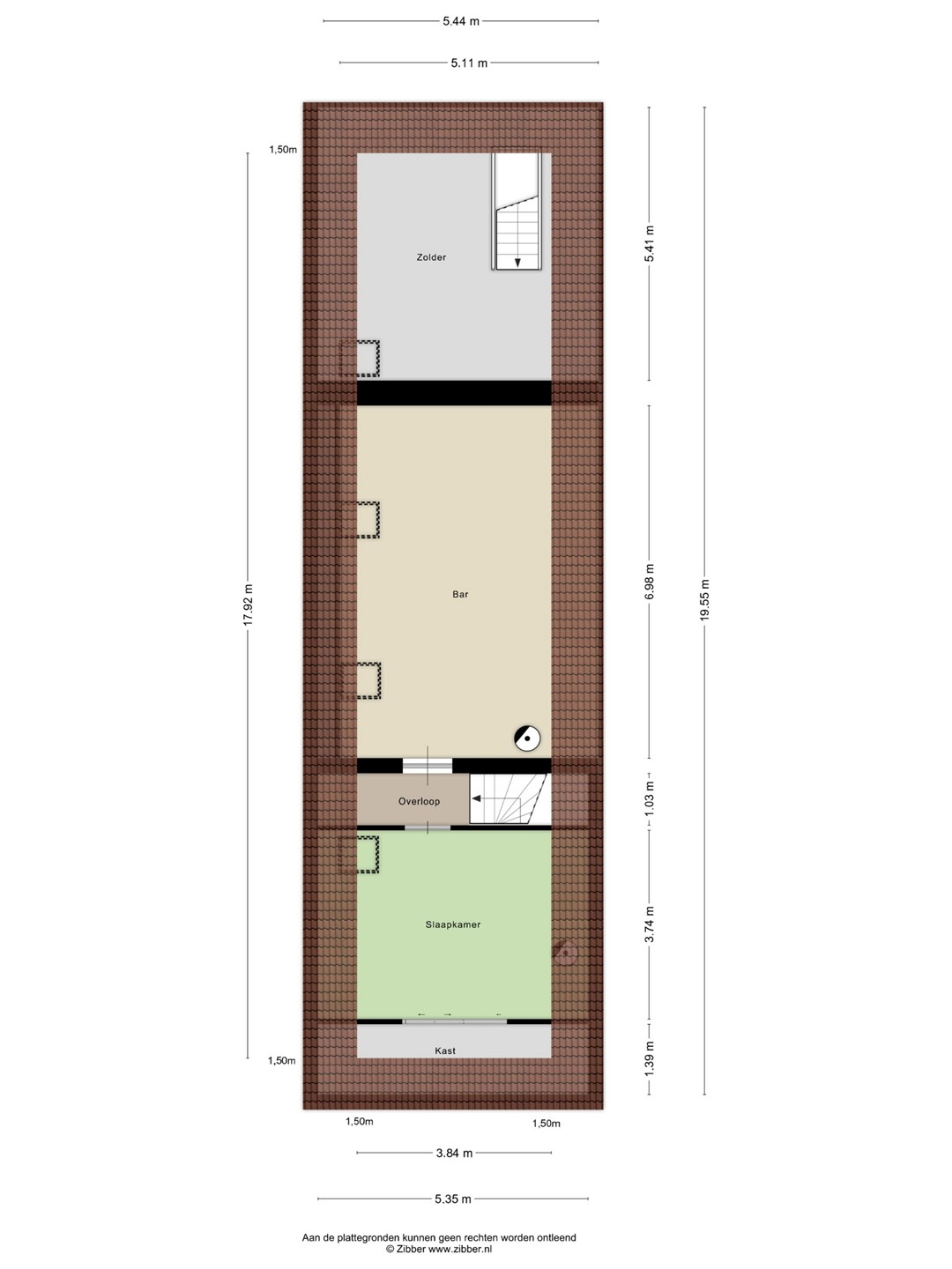
Indeling bijgebouw:
Begane grond: dubbele garage met geïsoleerde werkplaats voorzien van toiletruimte en trapopgang.
Open kapschuur met 4 vakken. Aangebouwde ruime, brede carport.
1e Verdieping: vaste trap naar overloop. Multifunctionele ruimte onder andere te gebruiken als fitness-, speel-, lounge- of praktijkruimte.
Sfeervol ingerichte bar-ruimte met houtkachel en houten bar met spiegelwand.
Via 2e trapopgang toegang tot magazijn/berging.
Bijzonderheden
Kenmerken:Bouwjaar 1910, daarna gerenoveerd en gemoderniseerd
Inhoud ca. 550 m³
Woonoppervlakte ca. 148 m²
Ruime schuur ca. 125 m² met dubbele carport, open kapschuur en dubbele garage/werkplaats.
Totale perceeloppervlakte 1.290 m²
De woning is grotendeels geïsoleerd en voorzien van airco en vloerverwarming (woonkamer, kantoor, speel-slaapkamer, badkamer). Het energielabel is een C label.
Cv-ketel bouwjaar 2015.
Camerabeveiliging en elektrisch bedienbare toegangspoort.
Buitenschilderwerk recent uitgevoerd.
Unieke ligging aan de rand van bebouwde kom op loopafstand van het centrum met supermarkten, ruim winkelbestand, diverse basisscholen alsmede het buitenzwembad, sportvelden en het landelijke buitengebied.
Bushalte om de hoek waar lijn 51 rijdt richting Doetinchem enerzijds en richting Vorden (met treinverbinding naar Zutphen) anderzijds.
Aanvaarding in overleg.
Kenmerken
| Overdracht | |
|---|---|
| Referentienummer | 00253 |
| Vraagprijs | € 695.000,- k.k. |
| Status | Verkocht onder voorbehoud |
| Aanvaarding | In overleg |
| Aangeboden sinds | Vrijdag 12 december 2025 |
| Laatste wijziging | Woensdag 25 februari 2026 |
| Bouw | |
|---|---|
| Type object | Woonhuis, eengezinswoning, vrijstaande woning |
| Soort bouw | Bestaande bouw |
| Bouwperiode | 1910 |
| Dakbedekking | Dakpannen |
| Type dak | Zadeldak |
| Isolatievormen | Dakisolatie Grotendeels dubbel glas Muurisolatie Vloerisolatie |
| Oppervlaktes en inhoud | |
|---|---|
| Perceeloppervlakte | 1.290 m² |
| Woonoppervlakte | 148 m² |
| Inhoud | 550 m³ |
| Oppervlakte externe bergruimte | 102 m² |
| Oppervlakte gebouwgebonden buitenruimte | 13 m² |
| Indeling | |
|---|---|
| Aantal bouwlagen | 2 |
| Aantal kamers | 6 (waarvan 4 slaapkamers) |
| Aantal badkamers | 1 (en 1 apart toilet) |
| Tuin | |
|---|---|
| Type | Tuin rondom |
| Hoofdtuin | Ja |
| Oriëntering | Zuid-west |
| Staat | Normaal |
| Tuin 2 - Type | Zonneterras |
| Tuin 2 - Oriëntering | Zuid-west |
| Tuin 2 - Staat | Normaal |
| Energieverbruik | |
|---|---|
| Energielabel | C |
| CV ketel | |
|---|---|
| CV ketel | Nefit |
| Warmtebron | Gas |
| Bouwjaar | 2015 |
| Combiketel | Ja |
| Eigendom | Eigendom |
| Uitrusting | |
|---|---|
| Aantal parkeerplaatsen | 5 |
| Aantal overdekte parkeerplaatsen | 5 |
| Warm water | CV-ketel |
| Verwarmingssysteem | Centrale verwarming Houtkachel |
| Ventilatie methode | Mechanische ventilatie Natuurlijke ventilatie |
| Keukenvoorzieningen | Inbouwapparatuur |
| Badkamervoorzieningen | Douche Ligbad Toilet Wastafel |
| Parkeergelegenheid | Vrijstaande stenen garage |
| Heeft airco | Ja |
| Heeft een rookkanaal | Ja |
| Tuin aanwezig | Ja |
| Heeft een garage | Ja |
| Beschikt over een internetverbinding | Ja |
| Heeft schuur/berging | Ja |
| Heeft een dakraam | Ja |
| Heeft ventilatie | Ja |
| Kadastrale gegevens | |
|---|---|
| Kadastrale aanduiding | Hengelo Gld L 490 |
| Perceeloppervlakte | 1.290 m² |
| Omvang | Geheel perceel |
| Eigendomsituatie | Eigen grond |