Beschrijving
Op fraaie locatie in het buitengebied met vrij uitzicht gelegen AUTHENTIKE WOONBOERDERIJ MET SCHUUR EN WEILANDEN. Rustig maar centraal gelegen op circa 1,5 kilometer van het centrum van Zelhem, slechts 4 kilometer van stad Doetinchem en ca. 10 autominuten vanaf de snelweg A18.
Deze nagenoeg in originele staat verkerende woonboerderij heeft nog veel authentieke kenmerken waardoor de sfeer van vroeger nog goed voelbaar is. Het onderhoud is wat achterwege gebleven de laatste jaren en de boerderij verdient de nodige aandacht.
Met een inhoud van ca. 900 m³ biedt deze boerderij veel mogelijkheden en is er voldoende ruimte om er een comfortabele en ruime woning van te maken met behoud van het fraaie karakter en uitstraling.
Ideaal object voor de liefhebber van het vrije buitenleven niet te ver van de (dorpse en stadse) voorzieningen en met voldoende ruimte voor het houden van hobbydieren en/of het creëren van zelfvoorziening middels eigen groentetuin, boomgaard en voedselbos.
Indeling
Kelder: Provisiekelder
Begane grond: entree, hal met meterkast. Woonkamer. Eetkamer, keuken. Slaapkamer. Binnendoorgang naar deel met badkamer en toiletruimte.
1e Verdieping: overloop, 2 slaapkamers, zolderberging.
Bijzonderheden
Bouwjaar 1936
Inhoud ca. 907 m³
Woonoppervlakte ca. 128 m², overige inpandige ruimte ca. 116 m², totale oppervlakte ca. 244 m²
Met uitbereiding van de 1e verdieping kan er nog meer woonoppervlakte gerealiseerd worden.
Totale perceeloppervlakte 4.555 m²
Verwarming middels gaskachels
Energielabel G
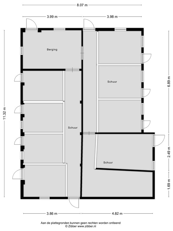
Grote stenen schuur van ca. 90 m² met paardenstallen en zolder. Deels voorzien van nieuw dak.
Oude houten kippenschuur ca. 50 m²
Aanvaarding in overleg.
Plattegronden
181741354_1622016_enkwe_begane_grond_first_design_20260130_cbd82c.jpg
181741354_1622016_enkwe_eerste_verdiepi_first_design_20260130_70cdc0.jpg
181741354_1622016_enkwe_kelder_first_design_20260130_b885ae.jpg
181741354_1622016_enkwe_schuur_first_design_20260130_248484.jpg
181741354_1622016_enkwe_vliering_first_design_20260130_8cc149.jpg
181741354_1622016_enkwe_berging_first_design_20260130_e38981.jpg