Beschrijving
Grenzend aan de Baakse Beek aan de rand van het dorp nabij natuur en landgoederen gelegen ROYAAL VRIJSTAAND WOONHUIS MET GASTENVERBLIJF, ruime geïsoleerde garage, carport voor meerdere auto’s, grote berging en achtertuin met vrije ligging en uitzicht op bos van landgoed Hackfort en veel groen.
Indeling
Woning nummer 1 B:
Begane grond: entree, portaal met meterkast en kastenwand. Hal met trapopgang. Riante woonkamer met werkhoek, rookkanaal en panoramisch uitzicht op de achtertuin grenzend aan de Baakse Beek.
Ruime, lichte open keuken met inbouwapparatuur waaronder inductie kookplaat. Bijkeuken met aansluiting voor wassen en drogen en zij-entree. Keuken en bijkeuken voorzien van vloerverwarming. Slaapkamer op begane grond met aangrenzende badkamer voorzien van ligbad, douche, wastafel en infrarood sauna (ter overname). De moderne toiletruimte met hangend closet en fonteintje is bereikbaar zowel vanuit de badkamer alsook vanuit de hal.
1e Verdieping: overloop met bergruimte. Ruime slaapkamer met kastruimte, wastafel met warm en koud water. Groot dakkapel. Berging met CV-opstelling (Remeha, 2025).
2e Verdieping: vlizotrap naar bergzolder.
Gastenverblijf/B&B nummer 1C:
Begane grond: entree/berging, hal met trapopgang. Badkamer met douche, wastafel, toilet en aansluiting wasmachine.
1e Verdieping: Woonkamer met open keuken. Keuken voorzien van 4 pits elektrische kookplaat, afzuigkap en koelkast. Slaapkamer.
Kenmerken:
Bouwjaar 1968, uitgebouwd in 2000
De woning heeft 2 huisnummers te weten nummer 1B en 1C
Dubbele aansluiting TV en internet, KPN (aangesloten) en Delta (niet aangesloten, wel aanwezig)
Inhoud ca. 643 m³
Woonoppervlakte ca. 214 m²
Totale perceeloppervlakte 1.163 m²
Bijzonderheden
De woning is grotendeels geïsoleerd
Er zijn 16 zonnepanelen geïnstalleerd
Het energielabel van woning 1B is label A en van woning 1C is label B
Verwarming middels Remeha CV-ketel bouwjaar 2025. De keuken en bijkeuken zijn voorzien van een comfortabele vloerverwarming.
De keuken heeft (deels elektrisch bedienbare) zonnescreens en het kamerraam een rolluik.
Het buitenschilderwerk in 2024 uitgevoerd, alle houten kozijnen zijn gemaakt van hardhout.
Bijna de gehele woning is onderkelderd met betonnen vloer met diepte van ruim 1 meter. In deze kruipruimte is Tonzon isolatie aangebracht. De kruipruimte is altijd droog.
Riante buitenruimte, achtertuin met veel privacy en grenzend aan de beek. Het perceel biedt veel mogelijkheden voor diverse hobby’s en activiteiten.
Diverse terrassen om zowel van de zon te genieten of in de zomer de schaduw op te kunnen zoeken. Het gastenverblijf heeft een eigen terras en eigen dubbele parkeerplaats voor meerdere auto’s waardoor er optimale privacy is ten opzichte van elkaar.
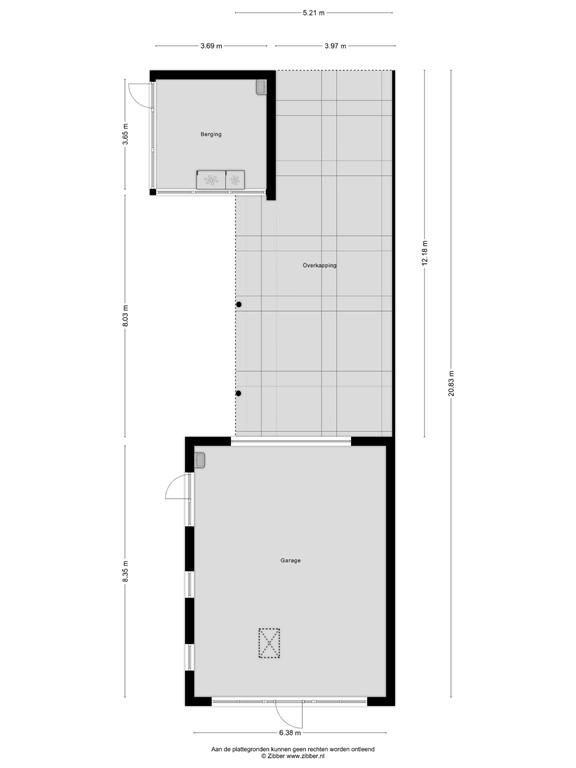
Er is een ruime overkapping/carport met plek voor wel 4 auto’s. De grote schuur/garage met ruim 50 m² aan oppervlakte is voorzien van wateraansluiting, krachtstroom en er is een gasaansluiting.
De schuur is degelijk gebouwd met geïsoleerde spouwmuren, geïsoleerde betonvloer, geïsoleerd dak en isolerende beglazing, brede garagedeur en met volledige verdiepingsvloer waardoor er een grote bergzolder beschikbaar is.
De grote droge berging (ca. 16 m²) beschik over elektra en water en de dakbedekking is in 2020 vernieuwd.
De carport en achtertuin is af te sluiten middels een grote schuifdeur aan de voorzijde. Aan de voorkant van de woning is een dierenweide met nachthok. De kippen zorgen voor de dagelijks verse eieren.
Wichmond is een rustig en gemoedelijk dorp met voldoende activiteiten waaronder buurtverenigingen, sportclubs, basisschool en een bakker. Het sportcomplex met hal, kantine, voelbalvelden, tennisbanen etc is gelegen op ca. 1 kilometer afstand.
Voor de dagelijkse boodschappen is Vorden op enkele autominuten bereikbaar (ca. 4 kilometer). De historische Hanzestad Zutphen is op 5 kilometer afstand gelegen en biedt een ruim aanbod aan winkels, musea, cultuur en een trein- en busstation.
De buurtbus (lijn 193, Arriva) rijdt elk uur (tussen 8 en 18:30 uur) naar o.a. Zutphen. De halte is op slechts ca. 100 meter afstand van de woning.
Aanvaarding in overleg.
Plattegronden
178445191_1572402_baron_begane_grond_untitled_20251024_c375a0.jpg
178445191_1572402_baron_eerste_verdiepi_untitled_20251024_7a65cb.jpg
178445191_1572402_baron_garage_untitled_20251024_2b2b5e.jpg
178445191_1572402_baron_schuur_untitled_20251024_7d791b.jpg
178445191_1572402_baron_zolder_untitled_20251024_a449a5.jpg