Beschrijving
Aan rustig doodlopend straatje, grenzend aan groenstrook en tegenover speelveldje gelegen HALF VRIJSTAAND WOONHUIS met aangebouwde garage en ruim perceel van 374 m². De achtertuin is zeer vrij gelegen en zonnig gesitueerd op het zuid-westen.
Ideale vrije ligging aan de rand van bebouwde kom met direct toegang tot wandelpad, veel groen, voldoende parkeergelegenheid in de buurt en uitzicht op speelveldje.
Indeling
Begane grond: via ruime oprit naar overdekte entree, hal, toiletruimte en meterkast. Woonkamer met vrij uitzicht op groen en speelveldje. Half open keuken met inbouwapparatuur waaronder inductie-kookplaat (2025), vaatwasser (2025), afzuigkap en koelkast. Bijkeuken met achter-entree. Binnendoorgang naar aangebouwde garage.
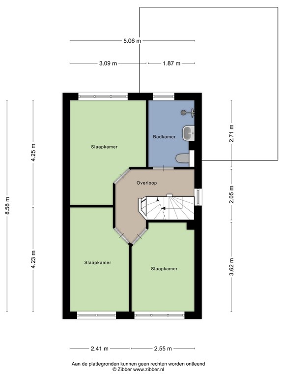
1e Verdieping: overloop, 3 slaapkamers, badkamer met douche, wastafel en hangend closet.
2e Verdieping: vaste trap naar grote open zolderruimte met mogelijkheid om extra kamer(s) te realiseren.
Bijzonderheden
Kenmerken:
Bouwjaar 1985
Inhoud ca. 462 m³
Woonoppervlakte ca. 113 m², overige inpandige ruimte ca. 16 m², totale oppervlakte ca. 129 m²
Totale perceeloppervlakte 374 m²
Deels geïsoleerd, voorzien van 15 zonnepanelen, energielabel D.
Aanvaarding in overleg.
Plattegronden
178590583_1587730_hoeti_begane_grond_first_design_20251030_467307.jpg
178590583_1587730_hoeti_eerste_verdiepi_first_design_20251028_131e0b.jpg
178590583_1587730_hoeti_tweede_verdiepi_first_design_20251028_8f934b.jpg
178590583_1587730_hoeti_berging_first_design_20251028_88e9f1.jpg