Beschrijving
Aan de rand van het bedrijventerrein gelegen ruim VRIJSTAAND WOONHUIS MET BEDRIJFSHAL en perceel grond. De woning is in 1991 degelijk gebouw en later uitgebouwd met een grote garage met zolder en een serre/tuinkamer.
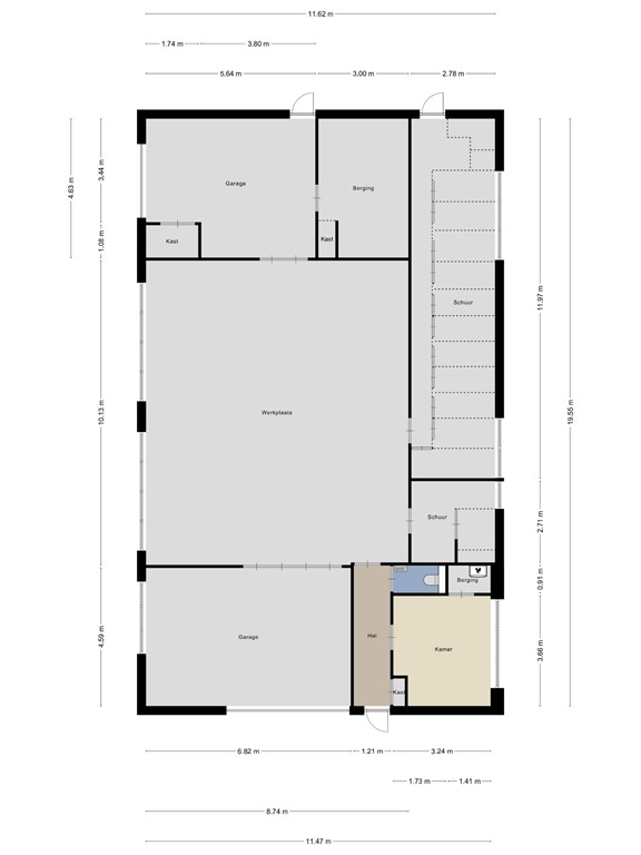
De bedrijfshal heeft een afmeting van ca. 20 m¹ x 12 m¹ en voorzien van kantoorruimte, eigen Cv-installatie, opslag, grote werkplaats. Het perceel is 1.750 m² groot met optioneel te koop het aangrenzende perceel waardoor het totale perceel 2.435 m² groot is.
Indeling
Begane grond: entree, hal, meterkast, toiletruimte met hangend closet en fonteintje. Badkamer met wastafel en ligbad/douche. Woonkamer met trapkast, open keuken / woonkeuken met diverse inbouwapparatuur. Bijkeuken met aansluiting voor wasmachine en de CV-opstelling. Vanuit de bijkeuken binnendoorgang naar aangebouwde ruime garage met vlizotrap naar bergzolder. Vanuit de garage is de serre/tuinkamer bereikbaar.
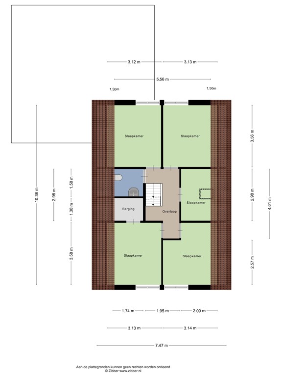
1e Verdieping: overloop, toiletruimte met wastafel. 4 ruime slaapkamers waarvan 1 met bergkast. 5e slaapkamer.
2e Verdieping: vaste trap naar royale bergzolder.
Bijzonderheden
Bestemming bedrijventerrein met bedrijfswoning
Bouwjaar 1991, in 1995 garage en serre aangebouwd
Inhoud ± 746 m³
Woonoppervlakte ca. 150 m² en ca. 50 m² overige inpandige ruimte, totale oppervlakte woning ca. 200 m².
De woning is goed geïsoleerd, voorzien van 16 zonnepanelen en heeft energielabel A.
De woning is voorzien van een airconditioning installatie waarmee tevens (elektrisch) verwarmd kan worden
Oppervlakte bedrijfshal ca. 240 m²
Perceeloppervlakte 1.750 m² en optioneel 685 m², totaal mogelijke oppervlakte 2.435 m²
Gelegen aan rand bedrijventerrein nabij buitengebied, treinstation, voetbalvelden en zwembad.
Plattegronden
172776646_1551900_ambac_begane_grond_first_design_20250516_4b2b7a.jpg
172776646_1551900_ambac_eerste_verdiepi_first_design_20250516_a84972.jpg
172776646_1551900_ambac_tweede_verdiepi_first_design_20250516_c2f6df.jpg
172776646_1551900_ambac_garage_first_design_20250516_a27915.jpg
172776646_1551900_ambac_zolder_first_design_20250516_dd4506.jpg