Beschrijving

Op rustige locatie op korte afstand van het centrum gelegen, goed onderhouden HALF VRIJSTAANDE SEMI-BUNGALOW MET RUIME OPRIT, GARAGE, VOORTUIN EN EEN RUIME ACHTERTUIN met achterom op een ruim perceel van 440 m² eigen grond. 2 SLAAPKAMERS EN BADKAMER OP BEGANE GROND.

Indeling

Begane grond: via de ruime oprit voor meerder auto’s is de entree bereikbaar. De voordeur geeft toegang tot de ruime hal met garderobe en toiletruimte. Naast de garagedeur is er nog een deur voor de zij-entree. De garagedeur is elektrisch bedienbaar.

De ruime woonkamer heeft grote raampartijen en is daardoor heerlijk licht en zonnig. Vanuit de woonkamer is er uitzicht op het rustige pleintje, middels een tuindeur is het zonnige terras op het zuiden aan de voorzijde toegankelijk. De keuken is heel praktisch gesitueerd direct naast de eethoek. De moderne inbouwkeuken is voorzien van Siemens inbouwapparatuur waaronder combi oven/magnetron, koelkast, vaatwasser, keramische kookplaat en brede afzuigkap. 

Vanuit de hal zijn er 2 slaapkamers bereikbaar, beide met vaste kast(en). De hoofdslaapkamer heeft tevens een tuindeur. De badkamer op de begane grond met douche, wastafel en hangend closet maakt de woning ideaal om levensloopbestendig te kunnen wonen. 

Binnendoorgang naar de ruime garage met meterkast, wasmachine-aansluiting en bergzolder. Vanuit de garage is de achtertuin bereikbaar met tuin, terras en buitenbergingen.     


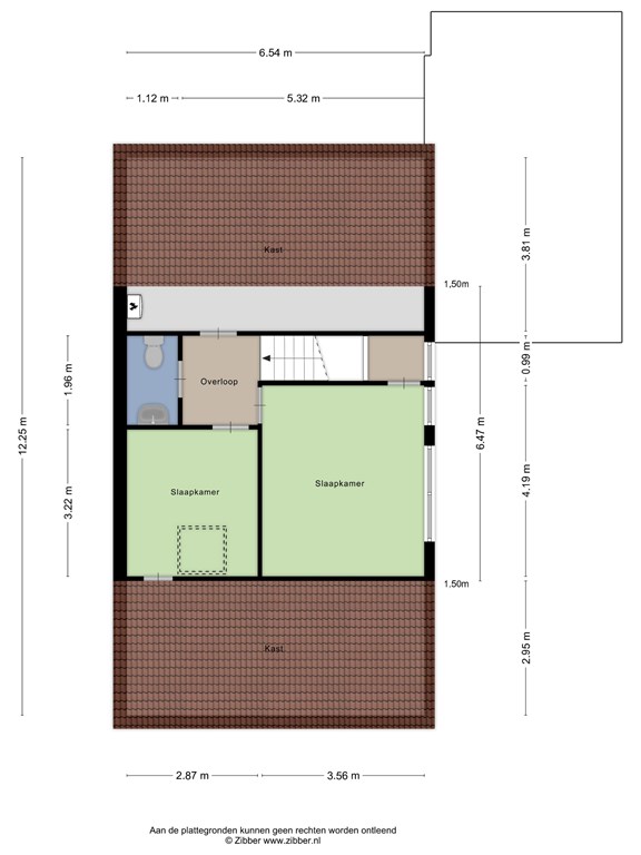
1e Verdieping: overloop, 2 slaapkamers waarvan 1 met dakraam en bergruimte in de schuine kant, toiletruimte met wastafel. Bergzolder met cv-opstelling Intergas, 2023.

Bijzonderheden

Kenmerken:

Bouwjaar 1973
Inhoud ±  520 m³
Woonoppervlakte ca. 123 m² en 24 m² overige inpandige oppervlakte  
Totale oppervlakte woning ca. 147 m²
Perceeloppervlakte 440 m²
Zonnige voortuin met terras op het zuiden voorzien van elektrisch bedienbaar zonnescherm met nieuw (2020) doek. 

De woning is deels geïsoleerd en heeft een energielabel C. De verwarmingsinstallatie beschikt over centrale verwarming met een CV-ketel Intergas, geïnstalleerd in 2023 met onderhoudscontract.


Ruime oprit met parkeergelegenheid voor minimaal 2 auto’s op eigen grond.

Alle voorzieningen zijn op de begane grond waaronder 2 slaapkamers en een badkamer. Daarnaast zijn er heel praktisch nog 2 slaap-/logeerkamers op de 1e verdieping met eigen toiletruimte.


Deze ruime woning met 4 slaapkamers is ideaal gesitueerd aan een rustig woonpleintje en op slechts enkele minuten wandelen van het centrum. Binnen 5 minuten sta je al in de eerste supermarkt. Wandel je de andere kant op dan kun je via het park zo het buitengebied in met diverse wandel- en fietspaden.

Kenmerken