Beschrijving

Op unieke locatie omringd door de bossen van ’t Klooster en landgoed ’t Zand gelegen VRIJSTAANDE DEGELIJK GEBOUWDE RECREATIEVILLA met een grote kavel eigen grond met tuin en bos.

Geheel vrij gelegen op 2.900 m² eigen grond dus zonder parklasten of verdere verplichtingen. Ultieme vrijheid in eigendom en gebruik.

Indeling

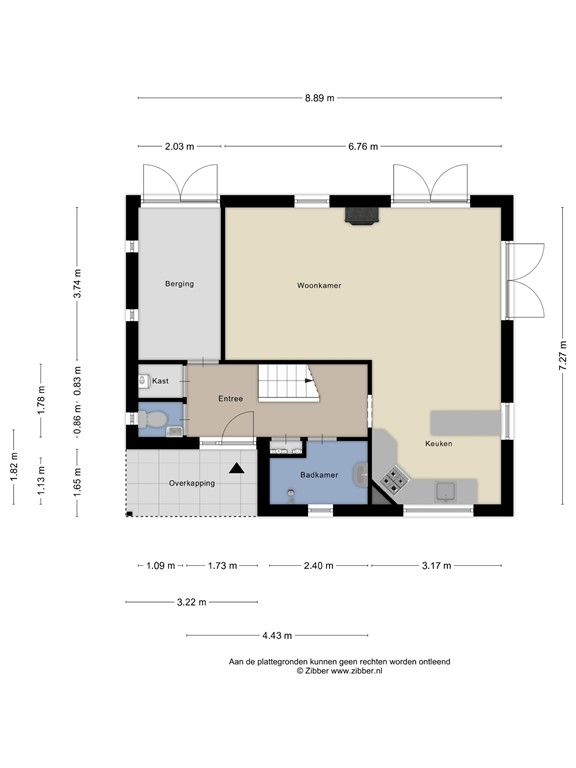
Begane grond: overdekte entree, hal, meterkast, toiletruimte, stookruimte met CV-opstelling. Badkamer. Open keuken met deels keukeninrichting. Woonkamer met dubbele openslaande terrasdeuren en een hangende open haard.
Berging/bijkeuken met openslaande deuren naar tuinzijde.

1e Verdieping: overloop en 3 slaapkamers. Slaapkamer aan voorzijde met diepe vaste kast, wastafel en bergruimte. 2e slaapkamer met groten kastenwand en 3e slaapkamer. De gehele verdieping is voorzien van doorlopende laminaatvoer zonder drempels. De slaapkamers zijn afgewerkt met gipsplafonds met sfeervolle houten balken in het zicht.

Bijzonderheden

Kenmerken:

Bouwjaar 1994
Inhoud ca. 377 m³
Woonoppervlakte ca. 101 m²
Externe bergruimte ca. 25 m²
Totale perceeloppervlakte 2.900 m²
Bestemming: recreatiewoning, geen hoofdverblijf.
Woning grotendeels geïsoleerd en voorzien van energielabel C
De huidige eigenaar is begonnen met een verbouwing/modernisering. De slaapkamers zijn recent afgewerkt. In de woonkamer en keuken is een nieuw geïsoleerd gipsplafond aangebracht. De badkamer, keuken, vloeren, wanden en plafonds op de begane grond moeten nog verder worden afgewerkt.

Unieke vrijheid maar toch alle dorpse voorzieningen in het centrum van Hengelo Gld op circa 3 kilometer afstand bereikbaar waaronder supermarkten, cafés, restaurants en openbaar vervoer. Doetinchem met de stadse voorzieningen, binnen zwembad, horeca en cultuur is op ca. 10 kilometer afstand gelegen.
In de directe omgeving is er volop gelegenheid voor een boswandeling en er zijn diverse fiets- en MTB routes.
Eenmaal in eigendom is dit een heerlijk vakantiehuis verscholen in de Achterhoek als een waar rustoord voor de hele familie en om generaties lang te kunnen genieten en samen te onthaasten.
Aanvaarding in overleg.

Kenmerken