Beschrijving
Uitgebouwde LEVENSLOOPBESTENDIGE HOEKWONING MET SLAAPKAMER EN 2E BADKAMER OP DE BEGANE GROND. Oprit met eigen parkeerplek, besloten achtertuin op het zuiden met achterom, berging, fraai aangelegde tuin met terrassen en veranda. Deze jonge woning is gelegen in nieuwbouwwijk De Kwekerij. Rustig gelegen op ruim perceel met 270 m² met aan voorzijde vrij uitzicht en direct nabij speelveldje en Solarpark “De Kwekerij”.
Indeling
Begane grond: entree, hal, toiletruimte met closet en fonteintje. Kastruimte met CV-opstelling (Intergas, 2015). Meterkast. Lichte woonkamer met praktische diepe trapkast.
Vanuit de woonkamer middels tuindeur direct toegang tot achtertuin met veranda. De veranda is voorzien van geïntegreerde lichtspots en elektrisch bedienbaar zonnescherm. Het naastgelegen terras is eveneens voorzien van een elektrisch bedienbaar zonnescherm.
Open keuken met inbouwapparatuur waaronder inductiekookplaat, afzuigkap, combi- oven/magnetron, koelkast, vriezer met 3 laden en vaatwasser. Woonkamer en keuken zijn voorzien van een fraaie doorlopende PVC vloer.
Binnendoorgang naar aangebouwde bijkeuken met zij-entree en voorzien van aansluitingen voor wassen en drogen. Slaapkamer op begane grond met aangrenzende badkamer voorzien van inloopdouche, toilet en wastafel. De badkamer is tevens voorzien van vloerverwarming.
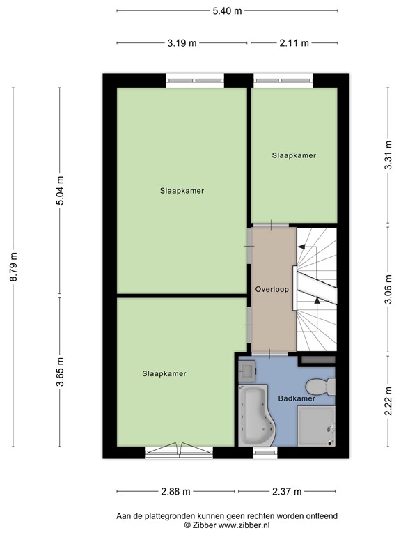
1e Verdieping: overloop, 3 ruime slaapkamers, Badkamer met ligbad, douche, wastafel en toilet.
2e Verdieping: middels vaste trap bereikbare ruime verdieping. Voorzolder met bergruimte of mogelijkheid voor werkplek. 5e ruime slaapkamer of werk-/hobbyruimte. Veel daglicht door groot dakraam en gevelraam. Bergruimte in de schuine kanten.
Bijzonderheden
Kenmerken:
Bouwjaar 2015
Inhoud ± 521 m³
Woonoppervlakte ca. 147 m²
Perceeloppervlakte 270 m²
In 2020 veranda aangebouwd
In 2021 uitgebouwd met bijkeuken, slaapkamer en badkamer
Begane grond en 1e verdieping voorzien van PVC vloer
Alle ramen zijn voorzien van horren
Goed onderhouden, buitenschilderwerk in 2023 professioneel uitgevoerd
Aan de gevel bij de oprit is een laadpaal geïnstalleerd voor het opladen van een elektrische auto (laadpaal ter overname)
De woning is volledig geïsoleerd, voorzien van HR++ beglazing en beschikt over 9 zonnepanelen (geïnstalleerd in 2022) met een capaciteit van 360 Wp per stuk
Energielabel A+
Oprit met eigen parkeerplek (en laadpaal ter overname)
Fraai aangelegde achtertuin met veranda, terras, berging en achterom
Royaal opgezette nieuwbouwwijk met speelveld en toegang tot park met wandel- speel- en recreëer- mogelijkheden.
Alle dorpse voorzieningen waaronder supermarkten, basisscholen en openbaar vervoer op korte afstand bereikbaar.
Plattegronden
176329924_1575103_entwe_begane_grond_first_design_20250902_8b4bc2.jpg
176329924_1575103_entwe_eerste_verdiepi_first_design_20250902_fcbf08.jpg
176329924_1575103_entwe_tweede_verdiepi_first_design_20250902_ec0aed.jpg
176329924_1575103_entwe_berging_first_design_20250902_27eff8.jpg